Prodej bytu 3+1 79 m²

Daškova, Praha 12 - Modřany
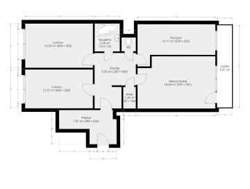
Nabízíme k prodeji byt 3+1 o výměře 79 m² + lodžie 6m² se nachází v 8. nadzemním podlaží v ulici Daškova, P-12 Modřany.
Současná dispozice 3+1 lze snadno změnit na velmi prostorné a praktické 3+kk s přístupem na lodžii, odstraněním nenosné příčky mezi obývacím pokojem a kuchyní(viz. plánek ve fotogalerii).
Dispozice: prostorná předsíň s vestavnými skříněmi, chodba, v levé části bytu jsou dvě ložnice orientované na sever, v pravé části bytu je vstup do obývacího pokoje se vstupem na lodžii a do kuchyně s jídelnou orientované jižně. Koupelna s rohovou vanou a topným žebříkem, WC samostatné. Bytová jednotka je kompletně osazena plastovými okny, lodžie je celá zasklená. Byt je velmi kvalitně zabezpečen. K bytu náleží sklepní kóje cca 3m² v suterénu domu.
Dům byl postupně revitalizován: , zateplení a fasáda, stoupací vedení, nový prostorný výtah. Přímo před domem je pěkné dětské hřiště.
V docházkové vzdálenosti je kompletní občanská vybavenost, škola, školka obchody, sportoviště, cyklostezky a mnoho zeleně nabízí parky v blízkosti domu.

| Celková cena | 6 899 000 Kč za nemovitost |
| Poznámka k ceně | Včetně právního servisu a provize RK |
| Stavba | panelová |
| Stav objektu | dobrý |
| Vlastnictví | osobní |
| Umístění objektu | centrum obce |
| Podlaží | 8. podlaží z celkem 8 |
| Dispozice | 3+1 |
| Výměra | 79 m² |
| Lodžie | 6 m² |
| Sklep | 3 m² |
| Topení | ústřední dálkové |
| Bezbariérový | |
| Výtah | ano |







