Prodej bytu 4+kk 77 m²

Vybíralova, Praha 9 - Černý Most
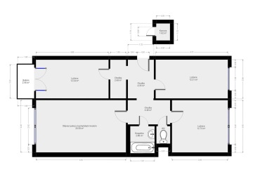
K prodeji nabízíme prakticky řešený světlý byt 4+kk s podlahovou plochou 73 m², s lodžií 2,5 m², komorou 1,2 m² a sklepem 3 m², který se nachází v 5.NP panelového domu, v klidné lokalitě s výhledem do parku. Dispozice bytu: předsíň s přístupem do všech místností, obývací pokoj s kuchyňským koutem, tři neprůchozí ložnice, koupelna, samostatné WC, lodžie s přístupem z jedné ložnice. K bytu náleží komora v patře a sklep. Plánek bytu s rozměry místností přiložen ve fotogalerii. Dům prošel důkladnou rekonstrukcí (2 výtahy, vodoměry, plastová okna, zateplení, fasáda. Výhodou této nemovitosti je její poloha (5 min pěšky od metra B Černý Most a rychlé napojení na dálnici na Mladou Boleslav, Hradec Králové a na městský okruh) a veškerá občanská vybavenost (v blízkosti domu je základní i mateřská škola a gymnázium). V blízkém okolí nalezneme také možnosti pro relaxaci a sportovní vyžití (park, nové dětské a sportovní hřiště, golfové hřiště, rozhledna Doubravka).
| Celková cena | 5 649 000 Kč za nemovitost |
| Poznámka k ceně | Včetně právního servisu a provize RK |
| Stavba | panelová |
| Stav objektu | dobrý |
| Vlastnictví | osobní |
| Umístění objektu | centrum obce |
| Podlaží | 4. podlaží z celkem 7 |
| Užitná plocha | 77 m² |
| Plocha podlahová | 74 m² |
| Lodžie | 3 m² |
| Sklep | 3 m² |
| Topení | ústřední dálkové |
| Bezbariérový | |
| Výtah | ano |




