Prodej chaty 108 m², pozemek 520 m²

Rabyně, okres Benešov Panorama
Prodej atraktivní chaty, nacházející se v blízkosti Slapské přehrady, v chatové oblasti u obce Rabyně. Podlahová plocha chaty je 108 m² s pozemkem o rozloze 471 m².
Dispozice:
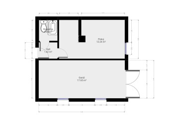
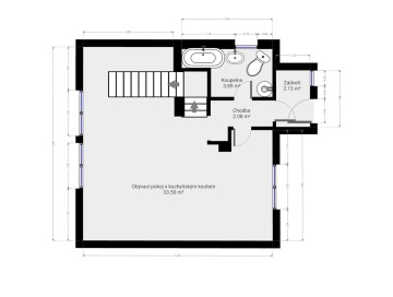
V 1.N.P. se nachází obývací pokoj s kuchyňským koutem a krbem, koupelna + WC. V 2.N.P. jsou dva pokoje, šatna a terasa s nádherným výhledem na přehradu. V suterénu je pokoj se sociálním zařízením a garáž využívána jako dílna. Velmi pěkná, udržovaná okrasná zahrada se nachází na mírně svažitém pozemku. Pitná voda je odebírána z vodovodního řádu, odpady vyřešeny vlastní jímkou na pozemku.
Obec Rabyně je velmi žádaná lokalita. Vedou zde turistické cesty, po kterých lze dojít na vyhlídku Máj, Teletínské vodopády, Rabyňskou vyhlídku Homolka, Svatojánské proudy, Slapskou přehradu a Povltavskou stezku. U přehrady je přístaviště parníku a lodí. MHD do Prahy v obci Nová Rabyně, cca 1 hod., autem cca 50 min.
| Celková cena | 5 900 000 Kč za nemovitost |
| Poznámka k ceně | Včetně právního servisu a provize |
| Stavba | cihlová |
| Stav objektu | velmi dobrý |
| Typ domu | patrový |
| Podlaží | 3 včetně 1 podzemního |
| Plocha zastavěná | 49 m² |
| Užitá plocha | 108 m² |
| Plocha podlahová | 86 m² |
| Plocha pozemku | 520 m² |
| Plocha zahrady | 471 m² |
| Parkování | garáž |
| Voda | místní zdroj |
| Topení |
Lokální tuhá paliva, Ústřední elektrické |










