Prodej obchodního prostoru 185 m²

Budečská, Praha 2 - Vinohrady
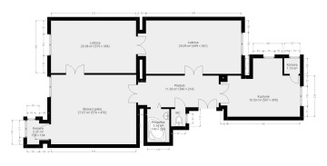
Prodej obchodních prostor 185 m², v ulici Budečská- Praha 2. Jedná se o bývalou prodejnu, která disponuje obchodem 74 m², sklady, technickými místnostmi, dvěma WC. Rozložení místností najdete ve fotogalerii inzerátu. Na podlahách je dlažba, vytápění vlastním plynovým kotlem. V objektu je umístěn alarm.

| Cena | 11 999 000 Kč |
| Užitná plocha | 185 m² |
| Plocha podlahová | 175 m² |
| Stavba | Cihlová |
| Stav objektu | Velmi dobrý |
| Typ domu | Patrový |
| Podlaží | 7 včetně 1 podzemního |





