Prodej rodinného domu 180 m², pozemek 260 m²

Náves sv. Petra a Pavla, Zlatníky-Hodkovice - Zlatníky
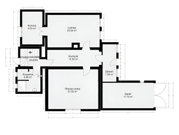
Na prodej rodinný dům č.p. 32 stojící v ulici NÁVES SV. PETRA A PAVLA ZLATNÍKY -HODKOVICE , Praha Západ, na pozemku p.č.st 47/2 o zastavěné ploše s nádvořím 260m2. Dispozice domu je: předsíň, obývací pokoj, pokoj, kuchyně, koupelna, WC, chodba se vstupem na půdu, která nabízí možnost další přístavby, garáž. Celý objekt vyjma střechy je v původním stavu a vyžaduje rekonstrukci. Celková podlahová plocha domu je cca 180m2. Zastavěná plocha pozemku činí cca 103m2, plocha pozemku je cca 157m2. Rozměry všech místností naleznete ve fotogalerii v půdorysech domu. K domu je připojen plyn, je připojen na veřejnou kanalizaci, k vodnímu řádu a elektřině.
Obec Zlatníky-Hodkovice v okrese Praha-západ je situována asi 15 km jižně od centra Prahy. Pouze tři minuty autem jsou vzdáleny Dolní Břežany s rozsáhlou občanskou vybaveností a navazujícím Břežanským údolím, kde najdete dostatek příležitostí pro relaxaci, procházky či cykloturistiku. Stejně daleko je Jesenice, taktéž s kompletní občanskou vybaveností, obchody a službami. Samotné Zlatníky pak disponují základními službami jako mateřská a základní škola (1.stupeň) s kroužky keramiky, angličtiny, jógy, apod., dále je zde např. obchod s potravinami, dětské hřiště či květinářství.
Dopravní obslužnost zajišťuje příměstská autobusová doprava linkou 341 s napojením na nádraží Modřany. Vynikající je dostupnost automobilovou dopravou díky cca 3km vzdálenému nájezdu na dálniční obchvat Prahy. Ten umožňuje přímé spojení s dálnicí D1 či letištěm Václava Havla, a dále pak s centrem města. K dalšímu rozvoji Zlatníků přispívá i realizovaná trasa metra D, jehož konečná stanice bude vzdálená pouze 4km.

| Celková cena | 4 999 000 Kč za nemovitost |
| Stavba | Smíšená |
| Stav objektu | Před rekonstrukcí |
| Typ domu | Patrový |
| Podlaží | 2 |
| Plocha zastavěná | 260 m2 |
| Užitná plocha | 180 m2 |
| Plocha podlahová | 163 m2 |
| Plocha pozemku | 260 m2 |
| Plocha zahrady | 157 m2 |



